Мы аккредитованы в Сбербанке, Альфа-Банке, Дом.рф банке, ВТБ

Строительство домов: кирпич, газоблок, пеноблок, каркасная технология

8(905)153-89-99

ежедневно с 09:00 до 19:00

Проект дома ДФ012 / 215.1 м2

Проект дома ДФ012

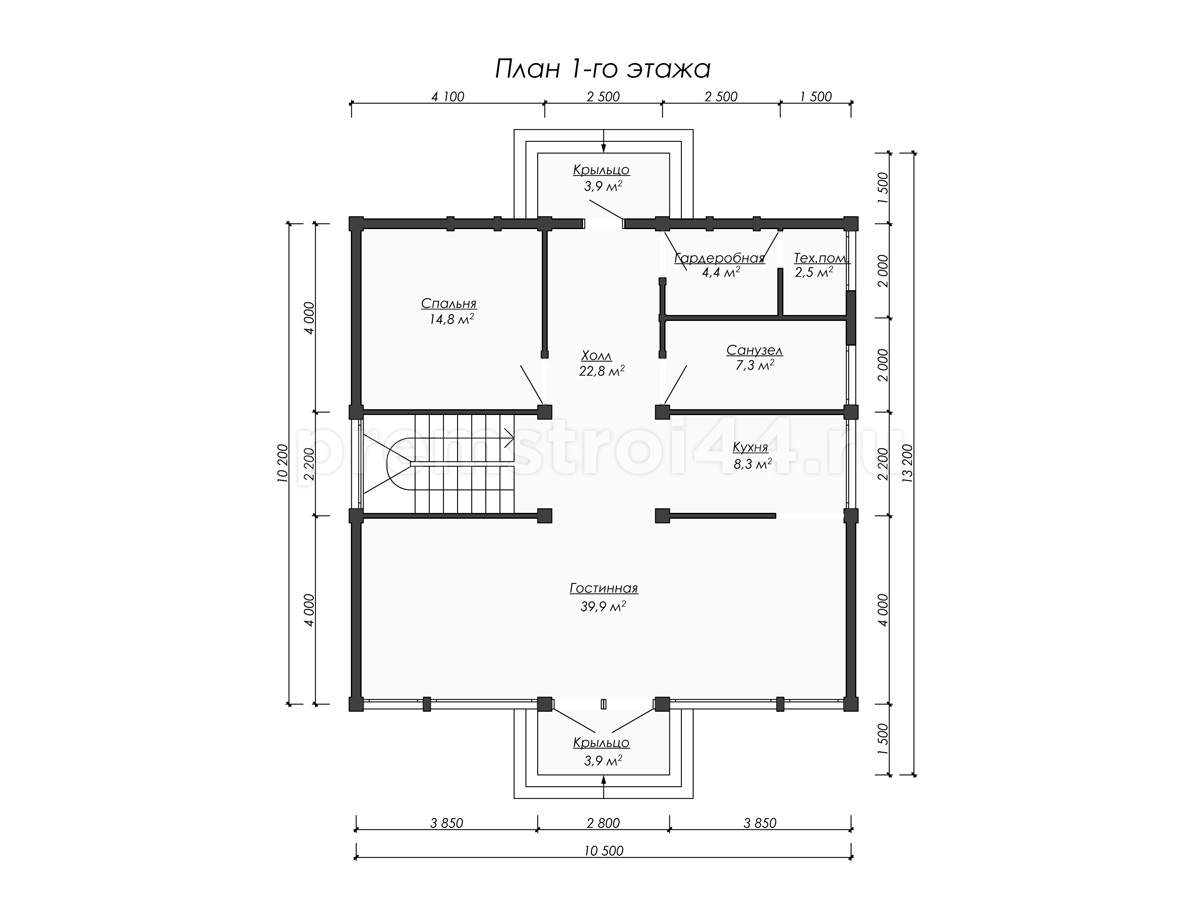
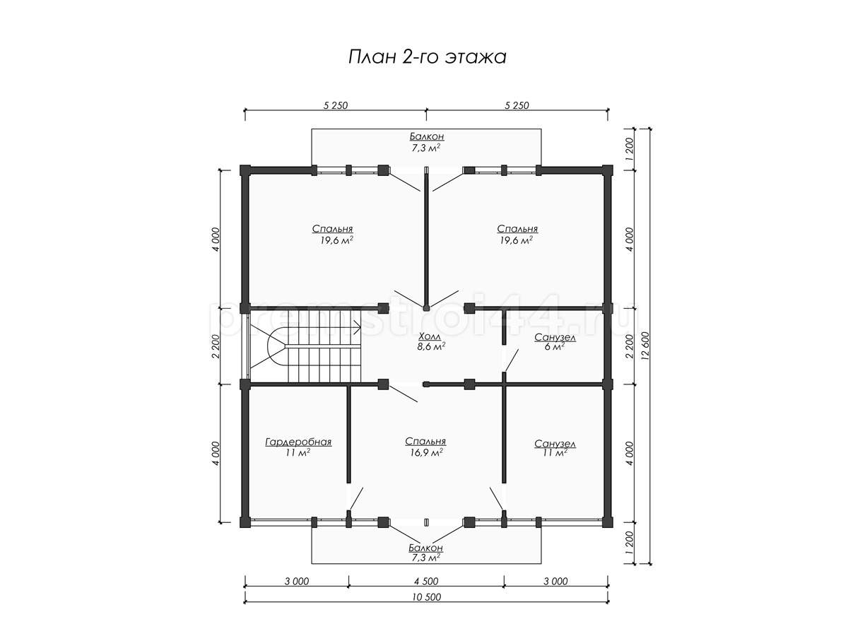
  • Площадь (м2) 215.1
  • Этажи 2
  • Размер (м) 10x10
Рубрика

Мы аккредитованы в Сбербанке, Альфа-Банке, Дом.рф банке, ВТБ

от 35000 руб. / м2

Консультация через мессенджер:

  • Этажей 2
  • Размер 10x10
  • Площадь (м2) 215.1
  • Терраса Нет
  • Балкон Есть
  • Крыльцо Есть
  • Эркер Нет
  • Санузлов 3
  • Спален 3
  • Крыша Вальмовая
  • Кукушка Нет
  • 2 входа Есть
  • Гараж Есть
  • Топочная Есть

Компания «Премстрой Кострома» предлагает профессиональные услуги по строительству домов из кирпича, газоблока и пеноблока. Мы гордимся тем, что стали аккредитованным застройщиком ведущих банков России, что открывает новые возможности для наших клиентов.

Аккредитация позволяет нашим заказчикам получать доступ к выгодным условиям финансирования и ипотечным программам, что значительно упрощает процесс приобретения жилья. Мы обеспечиваем полное сопровождение на всех этапах строительства: от проектирования до сдачи готового объекта.

Выбирая «Премстрой Кострома», вы можете быть уверены в высоком качестве строительства, надежности и соблюдении сроков. Наша команда профессионалов готова реализовать ваши мечты о собственном доме, учитывая все ваши пожелания и требования.

Свяжитесь с нами, чтобы узнать больше о наших услугах и получить консультацию по вашему проекту!

Какие преимущества получает клиент

Аккредитация застройщика в банке предоставляет клиентам множество преимуществ, что делает процесс покупки недвижимости более удобным и выгодным. Вот основные из них:

 

    1. Доступ к ипотечным программам: Аккредитованные застройщики обычно имеют специальные условия сотрудничества с банками, что позволяет клиентам получать ипотеку на более выгодных условиях, включая низкие процентные ставки и меньшие первоначальные взносы.

    1. Упрощенная процедура получения кредита: Клиенты могут рассчитывать на упрощенные процедуры оформления ипотеки, так как банк уже проверил финансовую устойчивость застройщика и качество его проектов. Это снижает риски для банка и упрощает процесс для клиента.

    1. Гарантия качества: Аккредитация подразумевает, что застройщик прошел тщательную проверку и соответствует определенным стандартам качества. Это дает клиентам уверенность в том, что они покупают жилье у надежного подрядчика.

    1. Снижение административных барьеров: Банк часто предлагает своим аккредитованным застройщикам более быстрые сроки рассмотрения заявок на ипотеку, что позволяет клиентам быстрее получить одобрение и начать процесс покупки.

    1. Программы государственной поддержки: Некоторые аккредитованные застройщики могут участвовать в государственных программах поддержки, таких как льготная ипотека или программы по улучшению жилищных условий. Это может существенно снизить финансовую нагрузку на клиента.

    1. Консультации и поддержка: Банк может предоставить клиенту консультации по вопросам ипотеки, а также помочь в выборе наиболее подходящей программы финансирования, что облегчает процесс принятия решений.

    1. Дополнительные услуги: Некоторые банки предлагают своим клиентам дополнительные услуги, такие как страхование недвижимости или помощь в оформлении документов, что делает процесс покупки жилья более комплексным и удобным.

    1. Защита интересов клиента: При наличии аккредитации банк может гарантировать защиту интересов клиента, так как он заинтересован в успешном завершении сделки и соблюдении всех условий контракта.

Таким образом, аккредитация застройщика в банке значительно упрощает и улучшает процесс покупки недвижимости для клиентов, делая его более безопасным и выгодным.

Состав базовой комплектации каркасного дома:

  • ФУНДАМЕНТ
  • Утепление наружного контура
  • Высота 1-го этажа — 2,60 м мансарда — 2,50 м
  • Каркас ЦЕЛИКОМ
  • Обработка АНТИСЕПТИКОМ всего каркаса
  • Кровля: металлочерепица — 0,5 мм
  • Наружная обшивка каркаса OSB 9 мм
  • Внутренняя отделка — гипсокартон KNAUF/Giproc 12.5 мм
  • Полы по деревянному перекрытию: ВДСПШ 22 мм под чистовое покрытие
  • Межэтажная лестница с перилами и балясинами
  • Окна — ПВХ (5-ти камерный профиль с ДОРОГОЙ фурнитурой и микропроветриванием)
  • Входная металлическая дверь с терморазрывом
  • Ввод/вывод труб водопровода и канализации в дом с наружи

Дополнительные работы:

  1. Обустройство участка (ландшафтные работы)
  2. Бурение скважины с подключением к дому
  3. Установка септика (ЛОС)
  4. Система «Умный дом» (от эконом до премиум)
  5. ИБП под ключ (автономное электроснабжение)
  6. Система дренажа
  7. Чистовая отделка снаружи и внутри дома

Наши работы

Особенности компаниии "Премстрой"

1. Индивидуальный подход: Возможность разработки индивидуальных проектов домов с учетом пожеланий клиента.
2. Качество материалов: Использование современных и качественных строительных материалов, что обеспечивает долговечность и надежность построек.
3. Разнообразие технологий: Применение различных технологий строительства (каркасное, кирпичное, деревянное и т.д.), что позволяет выбрать оптимальный вариант для каждого клиента.
4. Гарантии: Предоставление гарантий на выполненные работы и используемые материалы.
5. Сопровождение на всех этапах: Полное сопровождение проекта от разработки до сдачи объекта в эксплуатацию.

Преимущества СК "Премстрой" г. Костроме

1. Опыт и репутация: Наличие положительных отзывов и успешных проектов может свидетельствовать о высоком уровне профессионализма.
2. Конкурентоспособные цены: Возможность предложить конкурентные цены на строительство благодаря оптимизации процессов.
3. Сроки выполнения работ: Четкое соблюдение сроков строительства, что важно для клиентов.
4. Энергоэффективность: Проекты могут включать энергоэффективные решения, что снижает затраты на эксплуатацию.
5. Помощь с документами: Содействие в оформлении необходимых документов и разрешений на строительство.
6. Дополнительные услуги: Возможность предоставления дополнительных услуг, таких как ландшафтный дизайн или внутренние отделочные работы.
7. Льготные условия финансирования: Сотрудничество с банками для предоставления льготных ипотечных программ.

Выбор строительной компании — важный шаг, и "Премстрой" может предложить множество преимуществ для клиентов, желающих построить свой дом. Рекомендуется ознакомиться с портфолио компании и отзывами клиентов для более детального понимания ее возможностей.

Отзывы

Проект дома ДФ012

Уважаемые клиенты! Мы рады предложить вам возможность получить предварительную оценку стоимости строительства вашего дома. Пожалуйста, заполните форму ниже, и наши специалисты свяжутся с вами в ближайшее время для обсуждения деталей.

После получения вашей заявки мы проведем анализ и предоставим вам предварительную оценку стоимости. Спасибо за ваш интерес к нашим услугам!